GALLERY
PROPERTY DETAIL
Key Details
Property Type Vacant Land
Sub Type Residential
Listing Status Active
Purchase Type For Sale
MLS Listing ID 73470939
HOA Y/N false
Annual Tax Amount $875
Tax Year 2025
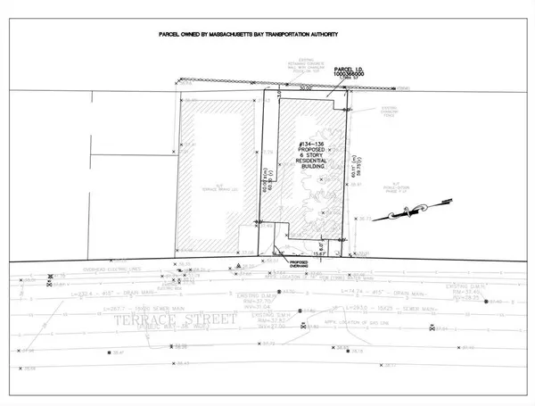
Lot Size 1,742 Sqft
Acres 0.04
Property Sub-Type Residential
Location
State MA
County Suffolk
Area Mission Hill
Zoning RL-R
Direction Tremont Street to Terrace Street
Building
Lot Description Level, Sidewalks
Sewer Public Sewer, At Street
Water Public, At Street
Exterior
Community Features Public Transportation, Shopping, Park, Walk/Jog Trails, Medical Facility, Bike Path, Conservation Area, Highway Access, House of Worship, Private School, Public School, T-Station, University
Others
Senior Community false
SIMILAR HOMES FOR SALE
Check for similar Vacant Lands at price around $549,000 in Boston,MA
CONTACT

The Team - Real Estate Advisors
Powered by Lofty Inc. Copyright 2026. All Rights Reserved. Privacy Policy & TOS



